Все инструменты для уникального дизайна
RNSSC

ВИЛЛА А1
ЛОКАЦИЯ: МОСКОВСКАЯ ОБЛАСТЬ, РОССИЯ
© RNSSC. ВСЕ ПРАВА ЗАЩИЩЕНЫ
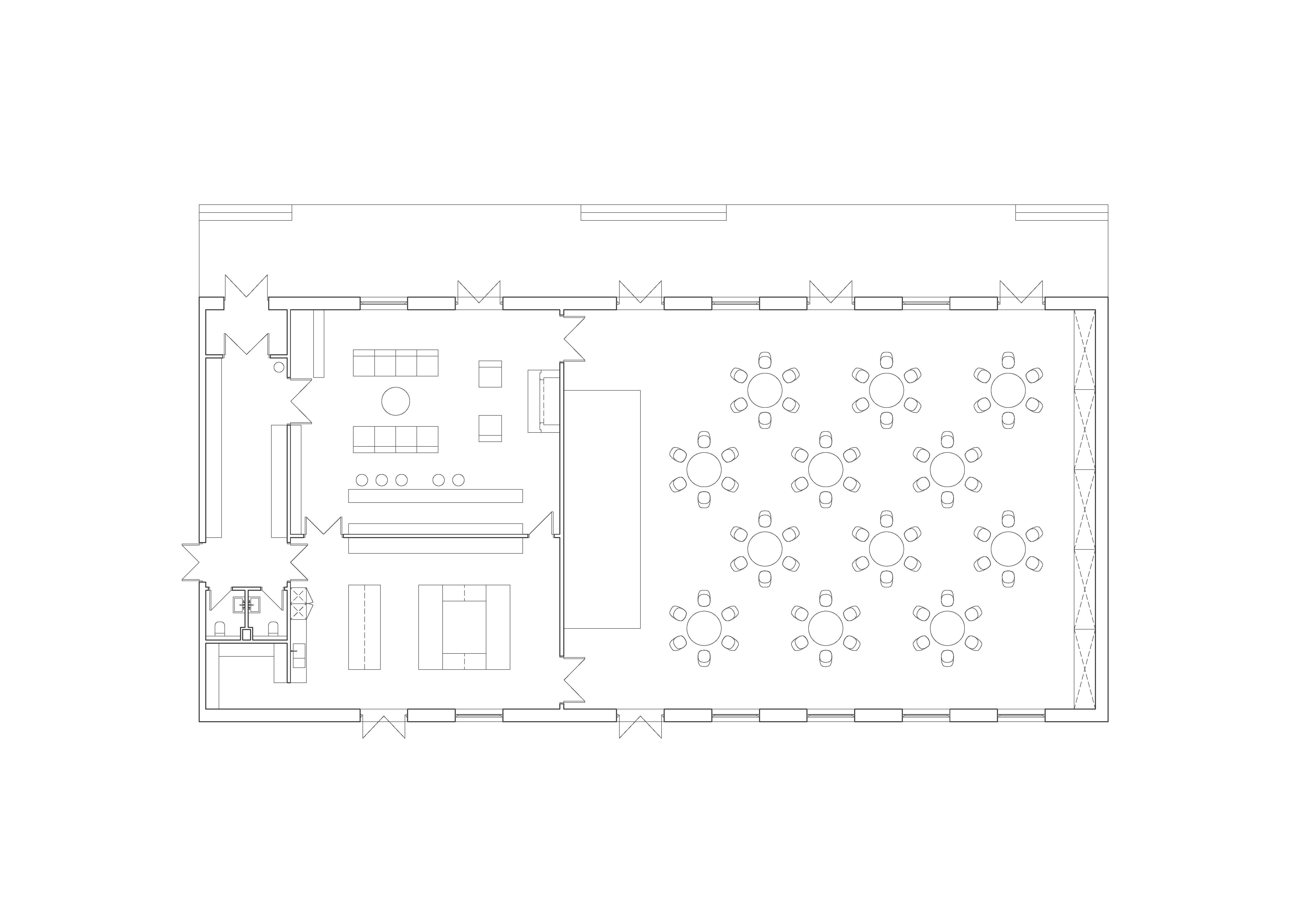
Архитектура и интерьеры пристроенной части основного здания виллы в поселке Барвиха. Проект пристройки включает в себя помещения зала для приемов с каминным залом. Отделка фасадов выполнена из деревянных ламелей и камня.
Интерьер зала отделан деревянными рельефными панелями по нижней части стен, в верхней - покраска в темно-серый оттенок. В качестве напольного покрытия выбран массивный модульный паркет из ореха. Отделка окон - дубовый массив с распашными ставнями внутри. В каминном зале расположен большой камин с нишей под дрова. Зал для приемов рассчитан на 12 круглых столов на 6 персон. В обоих залах предусмотрена витражная система с выходами на террасу.
А Р Х И Т Е К Т У Р Н А Я
С Т У Д И Я
С Т У Д И Я
А Р Х И Т Е К Т У Р Н А Я




ГОД: 2024
ПЛОЩАДЬ: 365 М2
ТИП: ПРИСТРОЙ К ГРУППЕ ЖИЛЫХ ЗДАНИЙ
Р
Х
И
Т
Е
К
Т
У
Р
Н
А
Я
Я
И
Д
У
Т
С
А




